Mieszkanie na wynajem Bydgoszcz, Szwederowo

3 pokoje
71.94 m²
34,75 zł/m2
3 piętro
GLM-MW-379

2 500 zł

Mieszkanie na wynajem
Oferta specjalna

Szczegóły oferty

Symbol oferty GLM-MW-379
Powierzchnia 71,94 m²
Powierzchnia użytkowa [m2] 69,19 m²
Liczba pokoi 3
Rodzaj budynku blok
Technologia budowlana cegła
Kaucja zabezp. 4000
Opłaty w czynszu wywóz śmieci, woda ciepła, CO, gaz
Opłaty wg liczników prąd, gaz
Piętro 3
Liczba pięter w budynku 3
Stan lokalu do wprowadzenia
Mies. czynsz admin. 757 PLN
Okna PCV
Instalacje dobre
Balkon duży
Liczba balkonów 1
Rok budowy 2000
Widok na inne budynki
Gaz tak - miejski
Woda ciepła - miejska
Dojazd asfalt
Otoczenie osiedle
Ogrzewanie C.O. miejskie
Umeblowanie tak
Usytuowanie trójstronne
Drzwi antywłamaniowe tak
Pomieszczenia

Opis nieruchomości

WYŁĄCZNIE Z BIUREM NIERUCHOMOŚCI GLAM HOUSE mają Państwo możliwość wynajęcia bardzo przestrzennego i wygodnego mieszkania usytuowanego na III piętrze trzypiętrowego bloku z cegły na bydgoskim Szwederowie przy ulicy Konopnej.

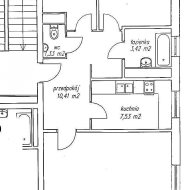
To ustawne i funkcjonalne mieszkanie o powierzchni 70 m2 składa się z trzech pokoi 23/12,5/8,60 m2. Z pokoju dziennego jest wyjście na duży, słoneczny balkon, z którego można podziwiać widok na panoramę osiedla,
kuchni z jadalnią o powierzchni 7,53 m2, przedpokoju 10,50 m2, łazienki z oknem 3,50 m2 oraz osobnego wc o powierzchni 1,33 m2.
Mieszkanie umeblowane, wyposażone w liczne zabudowy i gotowe na nowych Najemców OD ZARAZ!!!
Rozkładowy układ pomieszczeń znacznie ułatwia codzienne użytkowanie, a jasne, słoneczne wnętrza powodują, że miło spędza się w nich czas.

Rewelacyjna lokalizacja, w koło pełna infrastruktura, sklepy, szkoła, targowisko, przystanki...

Czynsz najmu to 2500 złotych plus opłaty eksploatacyjne (czynsz administracyjny około 757 zł, prąd)

Kaucja 4000 złotych

WYŁĄCZNIE NAJEM OKAZJONALNY

To wygodne i ustawne mieszkanie w jednej z najczęściej poszukiwanych lokalizacji jest z pewnością godne uwagi i polecenia.

GORĄCO POLECAM I SERDECZNIE ZAPRASZAM NA PREZENTACJĘ

Prosimy, aby podczas kontaktu z agentem odpowiedzialnym za daną ofertę zapytać o szczegółowe zasady współpracy z naszym biurem oraz o zakres usług, jakie zapewniamy w ramach tej współpracy.

Dla zapewnienia bezpieczeństwa naszych klientów sprzedających, a także zgodnie z ich częstymi prośbami, nie udostępniamy adresów nieruchomości przed podpisaniem umowy o pośrednictwo w kupnie lub najmie.

Wysokość prowizji ustalana jest indywidualnie podczas spotkania i uzależniona od zakresu czynności podejmowanych na rzecz klienta zamawiającego.



 

Lokalizacja nieruchomości

Podobne oferty

Oferta na wyłączność

Mieszkanie na wynajem

Bydgoszcz, Szwederowo

1 pokoj 26 m2 70,45 zł/m2
Oferta na wyłączność

Manager

Proszę wprowadzić poprawne imię i nazwisko
Proszę wprowadzić poprawny numer telefonu
Proszę wprowadzić poprawny adres e-mail
Proszę zaznaczyć wymagane zgody
Rozwiąż równanie:
14 8
Niepoprawny wynik